

Atlanta has undergone significant changes and events which have contributed greatly to the development and subsequent rebirth of Atlanta centered around five core values: equity, progress, ambition, access, and nature. In a manuscript published by the Department of City Planning, Atlanta aims to continue development of key features such as its skyline, public spaces, suburban/ urban neighborhoods, and transportation. To do this all while preserving and enhancing its forests, greenspaces, and waterways, Atlanta is taking a holistic design approach that coincides with 21st century goals of sustainable, integrated design.
The Midtown neighborhood of Atlanta has a rather expansive tree canopy, and our site sits within the Midtown Improvement District Boundary which aims to augment public resources. Atlanta itself has a plethora of native flora, however the greenery around our specific site is still rather sparse.
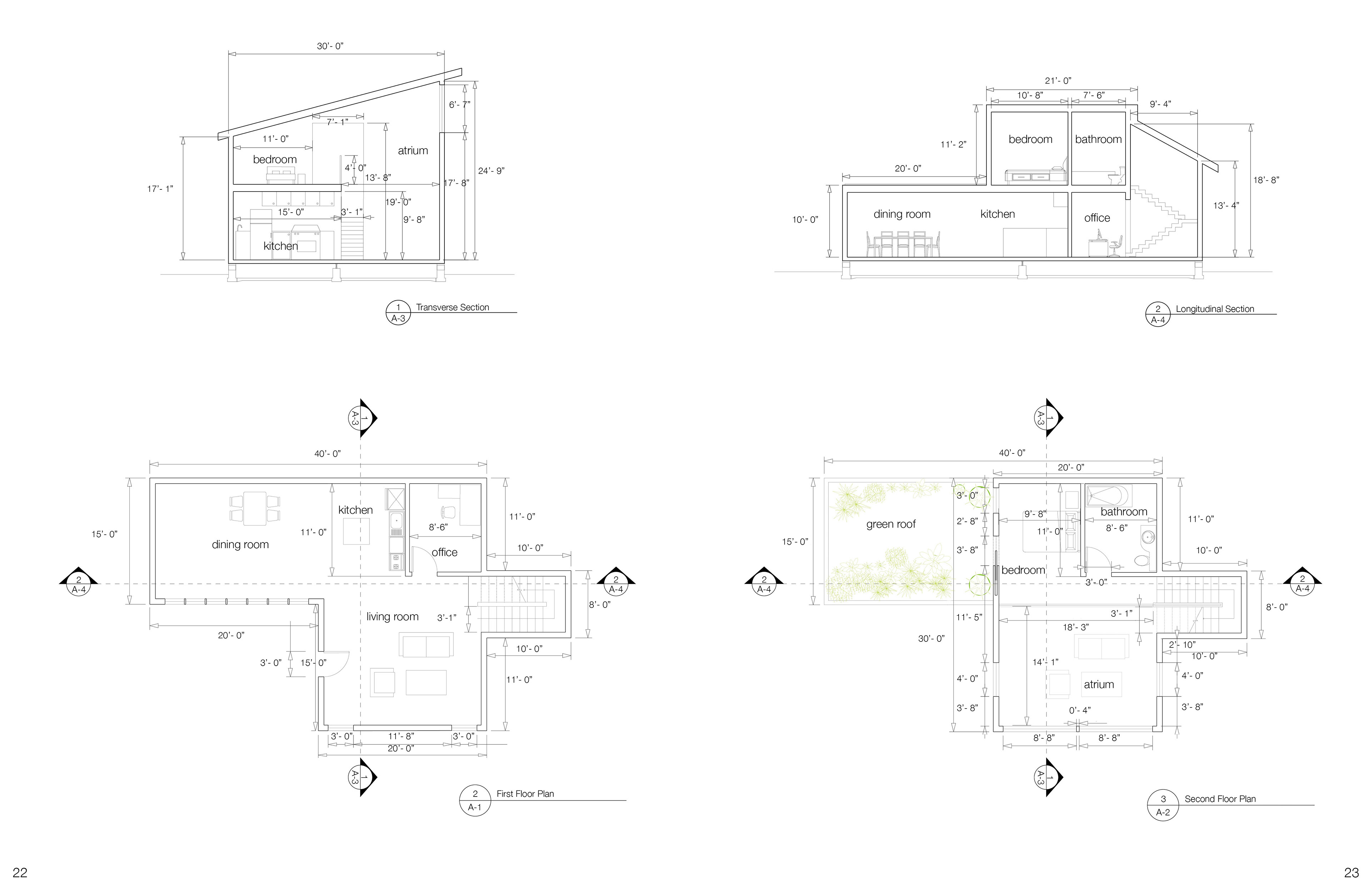
In terms of passive systems potential, our location in Atlanta, Georgia, is one that receives a substantial amount of daylight all year round. Given average temperature and precipitation trends for the area, cooling needs take higher priority over heating needs, however during the winter months heating is necessary. For our design we utilized passive cooling systems by way of a green roof and specialized SolarLeaf panels. The SolarLeaf panels are optimal for the site because they act both as solar shading during the day and as additional thermal mass that can aid temperature moderation. During the winter months, the windows on the south facing facade give the space direct gain qualities.



